Mapa   Ficha
Parcela en venta en Sant Llorenç D'Hortons, Barcelona (La vinya del pollastre)
REF. 7572
venta: 70.000 €
Descripción
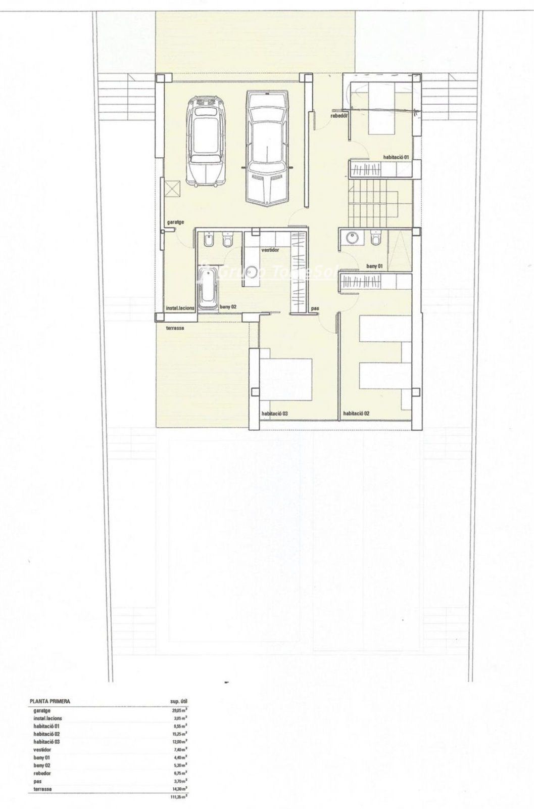
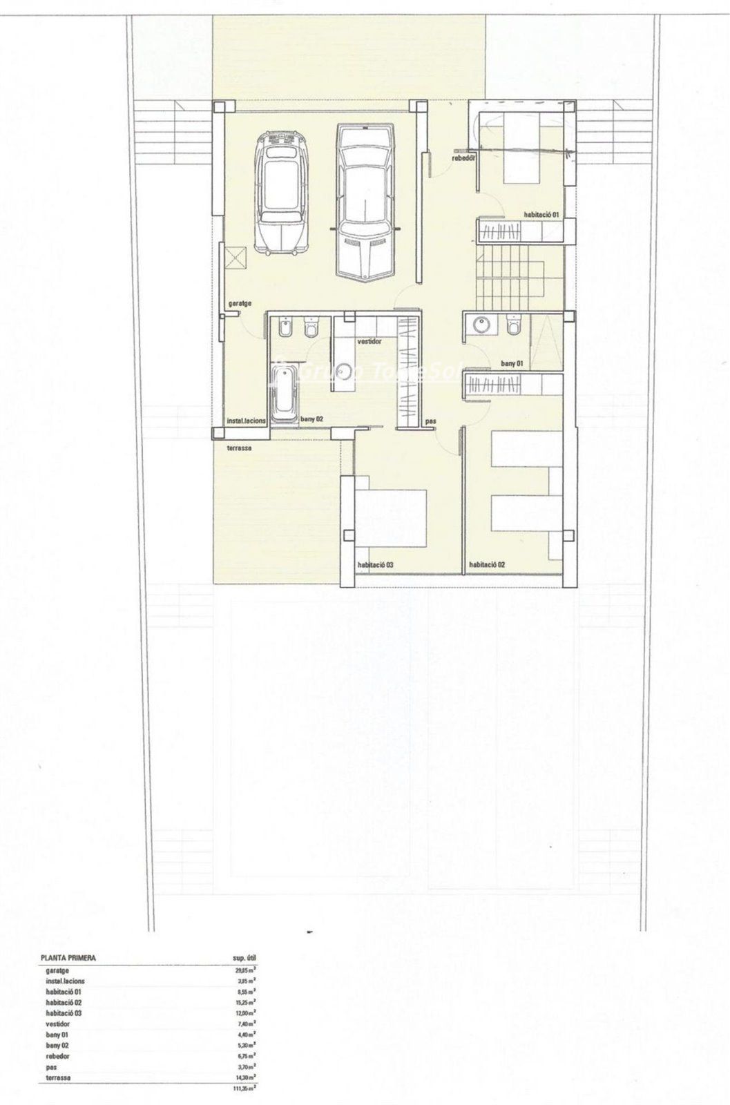
Precioso terreno, urbanizable de 562 m2 a 40km de Barcelona y 1,9 km de la estación de Renfe de Gélida. Con vistas a la montaña y entrada por dos calles. ..Con proyecto de vivienda unifamiliar.
Características
Precio Venta 70.000 €
Precio/m² 125 €/m²
Parcela 562 m2
Luz
Agua
Ubicación
La dirección del inmueble es aproximada.
Escalas de eficiencia



Tu agente
Ramón Ramos Navarro
Contáctanos

Si deseas más información sobre esta propiedad, por favor, rellena el formulario.

 Sí, he leído y/o acepto las Condiciones de uso y la Política de privacidad
Inmuebles similares:
 
64.000 €
Ref. 10880
Parcela en venta en Segur De Calafell y con 196 m2.
 
65.000 €
Ref. 10887
Parcela en venta en Cunit.