Piso en venta en Torredembarra, Tarragona (1a línea de playa)
REF. 10963

67 m2

40 m2

2

1
venta: 219.900 €
Descripción

Magnífico y acogedor apartamento en planta baja a tan solo 50 metros de la arena en el paseo marítimo de Torredembarra.


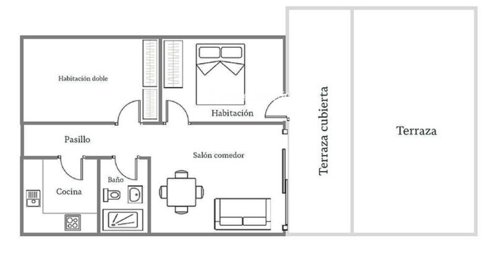
La vivienda cuenta con 67 m² construidos y se distribuye en dos habitaciones dobles, una de ellas con salida directa a una amplia terraza. Dispone de un salón-comedor de 20 m² con acceso a una agradable terraza de 20 m² con vistas al azul del mar, además de una espectacular terraza privada de 40 m², muy soleada, ideal para disfrutar al aire libre durante todo el año.


La cocina independiente ha sido recientemente reformada y se entrega totalmente equipada. El baño, también renovado, está listo para entrar a vivir sin necesidad de realizar mejoras.


Entre sus calidades destacan cerramientos de aluminio con doble acristalamiento y porticones, suelos de gres, puertas de madera recién instaladas y ventiladores de techo con iluminación.


Ubicado en segunda línea de mar, a escasos 50 metros del paseo marítimo, el inmueble está muy bien comunicado, con la estación de tren de Torredembarra a tan solo 400 metros, ofreciendo excelentes conexiones con Tarragona y Barcelona. Además, se encuentra junto a supermercado y todo tipo de servicios, con la comodidad de poder realizar las compras y gestiones diarias a pie.


Una vivienda ideal tanto como residencia habitual, segunda residencia o inversión, perfecta para quienes buscan comodidad, excelente ubicación y disfrutar del mar desde el primer día.

Características
Precio Venta 219.900 €
Precio/m² 3.282
Gastos de comunidad 32 €
I.B.I. 480 €
Año de construcción 1968
Construidos 67 m2
Útiles 61 m2
Dormitorios 2
Baños 1
Cocina Amueblada
Terraza
2ª línea de playa
Estado Buen estado
Tipo de suelo Gres
Ascensor
Calificación Energética (G) VER
Luz
Agua
Vídeos
Escalas de eficiencia


Eficiencia Emisiones: 35,00
Eficiencia Consumo: 193,00
193
35

Tu agente
Eva Alfonso
Contáctanos

Si deseas más información sobre esta propiedad, por favor, rellena el formulario.

 Sí, he leído y/o acepto las Condiciones de uso y la Política de privacidad
Inmuebles similares:
 
210.000 €
Ref. 11070  81 m2  3  1
Piso en venta en Cunit, con 81 m2, 3 habitaciones y 1 baños, Aire acondicionado y Calefacción Bomba de calor.
 
189.000 €
Ref. 10971  78 m2  3  1

El estilo de vida de Calafell se define por sus días tranquilos: una eterna playa de arena dorada, un clima envidiable los 365 días del año y un paseo marítimo vibrante para disfrutar en familia.