Mapa   Ficha
Casa en venta en Sitges, Barcelona (Poble Sec/Observatori)
REF. 10542

156 m2

15 m2

2

2
venta: 1.100.000 €
Descripción
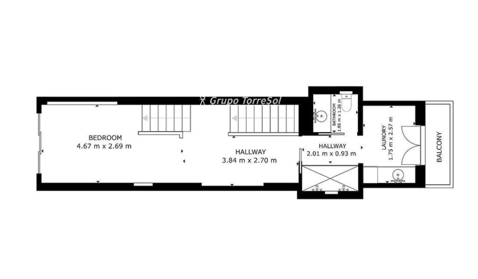
Casa “Capricho” – Una joya modernista junto al mar.En el corazón del encantador casco antiguo de Sitges, a escasos 50 metros de las doradas playas del Mediterráneo, se encuentra “Capricho”, una majestuosa casa de pueblo que combina la esencia histórica con un diseño contemporáneo exquisito. Con una fachada modernista protegida como bien histórico y una reforma integral que respeta su alma arquitectónica, esta propiedad representa una fusión perfecta entre arte, innovación y comodidad..✦ Una arquitectura con carácter.“Capricho” destaca desde la primera mirada por su imponente fachada modernista, meticulosamente conservada y declarada patrimonio arquitectónico. Su singularidad no solo reside en su belleza exterior, sino también en su cuidada rehabilitación interior, que se ha realizado respetando los más altos estándares de calidad y confort, sin renunciar a la historia que la envuelve..✦ Espacios distribuidos en 5 plantas.Con una superficie construida de 153 m², la casa se distribuye a lo largo de cinco niveles, ofreciendo espacios multifuncionales que permiten tanto la vida familiar como el ocio o el desarrollo profesional. Cada planta ha sido diseñada con inteligencia y sensibilidad, logrando una armonía entre amplitud, luz natural y funcionalidad..✦ Confort de última generación.Toda la vivienda está equipada con aislamiento acústico y térmico de alto rendimiento, creando un oasis de paz en pleno centro urbano. La calefacción por suelo radiante proporciona una temperatura agradable en cualquier estación del año, mientras que el suelo de parquet de madera natural, tratado con protección especial contra líquidos, añade calidez y elegancia a cada estancia..Las persianas eléctricas de aluminio ofrecen comodidad y seguridad, y su estructura ha sido reforzada con vigas de acero antisísmicas, garantizando durabilidad y tranquilidad total..✦ Cocina, luz y mar.La moderna cocina americana, abierta al salón, es perfecta para compartir momentos inolvidables. Equipada con un sistema de descalcificación, proporciona agua de calidad óptima para el hogar. Gracias a su orientación noreste, la casa se baña de luz natural durante buena parte del día, con una atmósfera luminosa y acogedora..Desde las plantas superiores se abren paso vistas espectaculares al mar, un privilegio que convierte cada mañana en un despertar frente al horizonte azul..✦ Espacios exteriores únicos.La vivienda cuenta con dos amplias terrazas y dos patios interiores, perfectos para relajarse, tomar el sol o compartir una cena bajo las estrellas. Las terrazas están preparadas estructuralmente para instalar piscinas privadas, convirtiéndolas en auténticos miradores de bienestar con vistas al mar..✦ Potencial comercial y versatilidad.En la planta baja, “Capricho” dispone de un local comercial independiente, ideal para abrir un negocio, estudio profesional o como fuente de ingresos adicionales a través del alquiler. Una posibilidad única para quienes buscan combinar vivienda y actividad económica en una de las zonas más codiciadas de Sitges...“Capricho” no es solo una casa. Es un estilo de vida, un homenaje al pasado con la mirada puesta en el futuro..Perfecta como residencia principal, segunda vivienda exclusiva o inversión inmobiliaria con alto valor patrimonial..Una joya irrepetible en el corazón de Sitges..Ven a descubrirla. Te enamorarás.
Características
Precio Venta 1.100.000 €
Precio/m² 7.051
I.B.I. 810 €
Año de construcción 1910
Construidos 156 m2
Útiles 140 m2
Dormitorios 2
Baños 2
Cocina Amueblada
Calefacción Suelo Radiante
Trastero
Terraza
Estado Reformado
Tipo de suelo Parquet
Aire acondicionado
Calificación Energética (E) VER
Luz
Agua
Ubicación
La dirección del inmueble es aproximada.
Escalas de eficiencia


Eficiencia Emisiones: 41,00
Eficiencia Consumo: 211,00
211
41

Tu agente
Ramón Ramos Navarro (Venta)
Contáctanos

Si deseas más información sobre esta propiedad, por favor, rellena el formulario.

 Sí, he leído y/o acepto las Condiciones de uso y la Política de privacidad